Imagine 34

GAVANA 3 | Apartament 2 camere – imobil mic, doar 6 locuințe

ID: EXP838 Pitesti, Gavana 3 72
88.800€ + TVA
Camere
2
Suprafata utila
44.40 mp
Etaj
Etaj 2
Bai
1
An constructie
2026
Descriere
Vă propunem spre vânzare un apartament situat într-un imobil de dimensiuni reduse, gândit pentru cei care își doresc mai multă liniște, spațiu personal și mai puțini vecini.
Clădirea cuprinde doar șase apartamente, ceea ce înseamnă un număr redus de locatari și o administrare mai simplă a spațiilor comune.
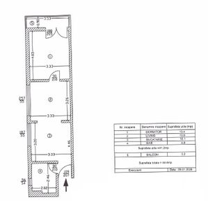
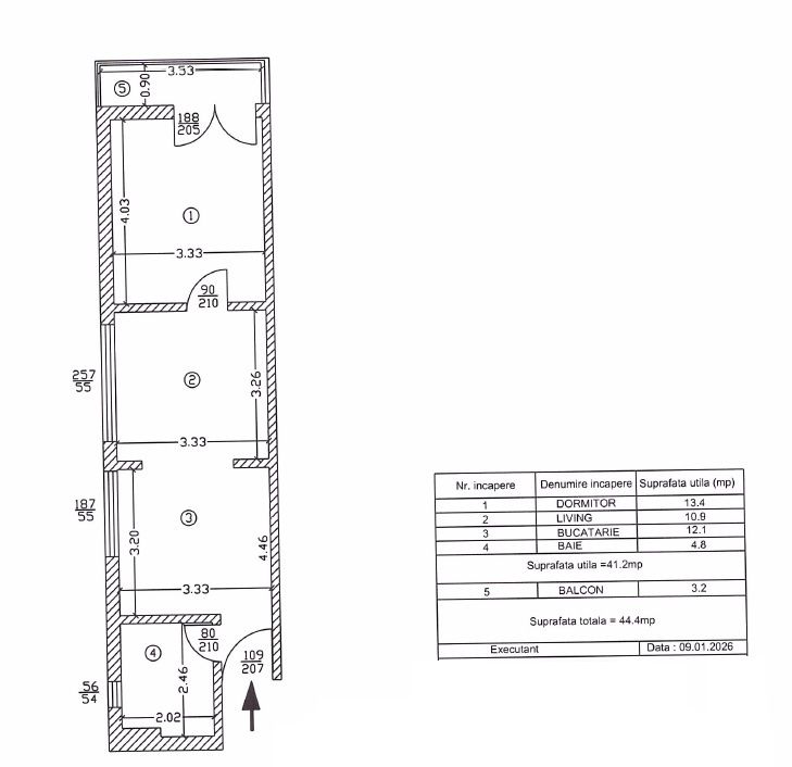
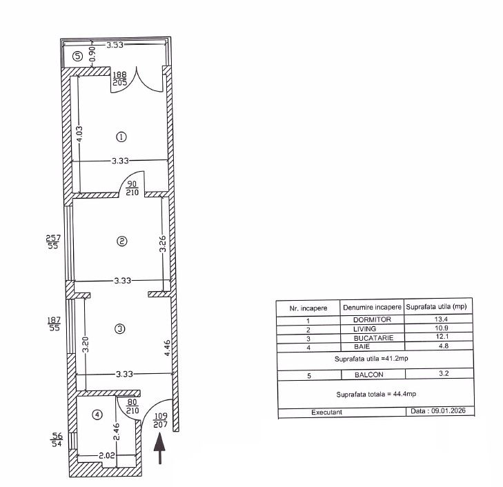
Apartamentul are o suprafață utilă 44.4 mp și este proiectat astfel încât fiecare spațiu să fie utilizat eficient. Poate reprezenta atât o locuință permanentă, cât și o investiție, zona Găvana fiind una cu cerere constantă pe piața închirierilor.
Dezvoltatorul a ales tencuială clasică, în locul pereților din rigips, pentru o izolare fonică mai bună și o rezistență mai mare în timp.
Apartamentul se predă cu următoarele dotări incluse:
• centrală termică proprie
• aer condiționat
• încălzire în pardoseală
• ușă antiefracție
• contoare individuale pentru utilități

În interiorul ansamblului sunt amenajate aproximativ 12 locuri de parcare, disponibile pentru viitorii proprietari.
Un loc de parcare poate fi achiziționat separat, la prețul de 10.000 euro.
Accesul în incintă este privat, prin poartă acționată electric, iar ansamblul beneficiază de sistem de supraveghere video, pentru un plus de siguranță și confort.
Caracteristici
  • ID:EXP838
  • Nr. camere:2
  • Nr. dormitoare:1
  • S. utila:44.40 mp
  • S. utila totala:44.40 mp
  • S. construita:53.28 mp
  • Comp.:Semidecomandat
  • Etaj:Etaj 2
  • Nr. bucatarii:1
  • Nr. bai:1
  • An constructie:2026
  • Structura:Caramida
  • Tip imobil:Bloc
  • Regim inaltime:P+2
Specificatii
Curent
Apa
Canalizare
Gaz
CATV
Telefon
Acces internet
Centrala proprie
Incalzire pardoseala
Aer conditionat
Izolatie Exterior
Vopsea lavabila
Faianta
Parchet
Gresie
Ferestre PVC
Usa intrare PVC
Localizare
George Tabarca
Team Leader eXp Pitesti
Esti interesat de aceasta proprietate ?
Proprietati similare
TOP De vanzare Imagine 27922
BANAT – Apartament 2 camere, mobilat/utilat, etaj 1, zonă excelentă
Pitesti, Banat 84.900€
2 camere 1 baie 51.80mp
TOP De vanzare Imagine 27516
Mută-te imediat! 2 camere modern, mobilat complet, Pitești - Zona Nord
Pitesti, Negru Voda 81.500€
2 camere 1 baie 50mp
TOP De vanzare Imagine 27568
Negru Vodă | Apartament 3 camere | Etaj 2/4 | Mobilat și utilat | Renovat
Pitesti, Nord 86.000€
3 camere 1 baie 50mp
TOP De vanzare Imagine 26820
Negru Voda, Apartament 2 camere, decomandat, balcon mare, Școala 14 Pitești
Pitesti, Negru Voda 79.900€ 81.000€
2 camere 1 baie 50mp
TOP De vanzare Imagine 25390
Apartament 4 camere cartier Craiovei
Pitesti, Craiovei 100.000€ 105.000€
4 camere 2 bai 86.66mp
TOP De vanzare Imagine 25338
Apartament 2 camere modern | Trivale | Bloc nou 2022 | Zonă liniștită
Pitesti, Trivale 95.000€
2 camere 1 baie 46.80mp