Imagine 34

Apartament cu 2 camere in Tomis Plus-mobilat si utilat complet + loc de parcare

ID: FX69612 Constanta, Tomis Plus 6
115.000€
Descriere
Apartament cu 2 camere | Mobilat si utilat | Loc de parcare proprietate

Zona Elvila | Tomis Plus | Constanta | Str. Liviu Rebreanu, nr. 29, Et. 3, Ap. 31

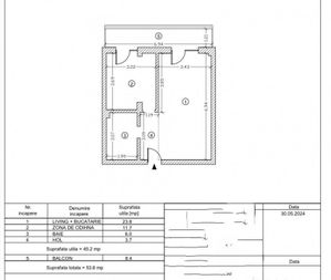
Suprafață totală 53,6 mp, din care balconul are 8,4 mp | Dormitoare: 1 | Bai: 1

Incalzire: Centrala proprie pe gaz | Răcire: Aer condiționat

Pret: 115.000 euro

Se oferă spre vânzare un apartament cu 2 camere, situat în Tomis Plus, zona Elvila, Constanța, într-un imobil modern, dotat cu lift. Apartamentul este amplasat la etajul 3, într-o zonă liniștită, cu orientare către lac, oferind lumină naturală și o priveliște deschisă.
Proprietatea dispune de o compartimentare eficientă, cu spații bine proporționate, și se vinde complet mobilată și utilată, fiind potrivită atât pentru locuire imediată, cât și pentru investiție. Un avantaj important îl reprezintă locul de parcare inclus în proprietate, oferind confort și siguranță.
Puncte de interes în apropiere:
Supermarketuri: Mega Image, Profi, Kaufland
Acces rapid la bulevardul Tomis și stații de autobuz
Clinici medicale, farmacii, medic familie, grădinița, restaurant, frizerie, salon de înfrumusețare

Pentru detalii si vizionari, va rugam sa ne contactați!
Caracteristici
  • ID:FX69612
  • Nr. camere:2
  • Nr. dormitoare:1
  • S. utila:45.20 mp
  • S. balcoane:8.40 mp
  • S. utila totala:53.60 mp
  • Comp.:Decomandat
  • Confort:1
  • Etaj:Etaj 3
  • Nr. bucatarii:1
  • Nr. bai:1
  • Nr. balcoane:1
  • Nr. parcari:1
  • An constructie:2024
  • Structura:Beton
  • Tip imobil:Bloc
  • Regim inaltime:P+3
  • Orientare:Est
Specificatii
Curent
Apa
Canalizare
Gaz
CATV
Telefon
Acces internet
Fibra optica
Centrala proprie
Centrala imobil
Calorifere
Aer conditionat
Izolatie Exterior
Vopsea lavabila
Faianta
Parchet
Gresie
Ferestre Aluminiu
Ferestre Termopan
Jaluzele Verticale
Usa intrare Metal
Usa interior Lemn
Bucatarie Mobilata
Bucatarie Utilata
Apometre
Contor caldura
Contor gaz
Interfon
Lift
Localizare
Alexandru SANDU
Esti interesat de aceasta proprietate ?
Proprietati similare
TOP De vanzare Imagine 24048
Apartament ultracentral
Pitesti, Ultracentral 99.900€
2 camere 1 baie 4600mp
TOP De vanzare Imagine 17081
Pitesti, apartament 3 camere, decomandat
Pitesti, Central 100.000€
3 camere 7000mp
TOP De vanzare Imagine 16989
Apartament 2 camere Craiovei - Zona Targ Saptamanal
Pitesti, Prelungirea Craiovei 110.000€
2 camere 1 baie 68.18mp
TOP De vanzare Imagine 15419
OCAZIE DE NERATAT! APARTAMENT IN VILA! curte si intrare privata!
Bascov, Nord-Vest 103.500€ + TVA
3 camere 1 baie 101mp
TOP De vanzare Imagine 17002
Apartament modern cu 2 camere în Gavana 3, Pitești – Confort și Stil la Etajul 2
Pitesti, Gavana 3 109.500€
2 camere 1 baie 56.94mp
TOP De vanzare Imagine 147
Apartament 3 camere Eremia Grigorescu | Etaj 1/4
Pitesti, Eremia 99.500€
3 camere 1 baie 56.70mp