Imagine 34

Pipera Azur acces A3 penthouse, terasa SUD

ID: FX64851 Bucuresti, Pipera 22
180.000€ + TVA
Camere
3
Suprafata utila
75 mp
Etaj
Etaj 3
Bai
1
Parcari
1
An constructie
2025
Descriere
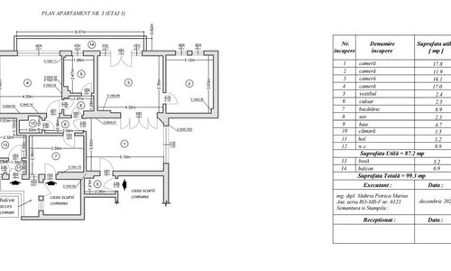
Va prezentam spre vanzare un apartament cu 3 camere, DECOMANDAT, situat la etajul 3 al unui bloc finalizat 2025. Amplasat stradal pe Emil Racovita, chiar langa cartierul Azur. Apartamentele sunt pregatite de vanzare, finisajele montate sunt de calitate superioara, blocul are lift, garaj la subsol, acces securizat 24/7, supraveghere video. Apartamentul are ca principale beneficii:  luminozitatea data de ferestrele mari din podea pana in tavan, si spatiile generoase, fiind situat la ultimul etaj cu o terasa frumoasa orientata catre SUD. Inclusiv faptul ca se afla intr-un bloc cu regim de inaltime mic cu doar 10 apartamente, este un atuu. Apartamentul are o suprafata utila totala de 92mp, compus din: apartamentul cu 2 dormitoare si 2 bai plus bucatarie si living cu o suprafata de 74mp,  la care se adauga o terasa de 12mp si un balcon de 7mp. Apartamentul este finisat gata, bucataria este deschisa, dar separata si care poate fi inchisa, daca se doreste. Ambele bai au fereastra exterioara si sunt complet mobilate. Apartamentul are incalzire prin pardoseala, centrala termica proprie, utilitati contorizate separat. Este disponibil si un loc de parcare dar nu este inclus in pretul afisat.
 Va incurajam sa sunati la numarul de telefon afisat si sa veniti la vizionare. 
La pretul afisat se adauga TVA. 
Caracteristici
  • ID:FX64851
  • Nr. camere:3
  • Nr. dormitoare:2
  • S. utila:75.00 mp
  • S. balcoane:7.00 mp
  • S. terase:12.00 mp
  • S. utila totala:93.00 mp
  • S. construita:99.00 mp
  • Comp.:Decomandat
  • Confort:1
  • Etaj:Etaj 3
  • Nr. bucatarii:2
  • Nr. bai:1
  • Nr. balcoane:1
  • Nr. parcari:1
  • An constructie:2025
  • Structura:Beton
  • Tip imobil:Bloc
  • Regim inaltime:S+P+3
  • Orientare:Sud
Specificatii
Curent
Apa
Canalizare
Gaz
CATV
Telefon
Acces internet
Fibra optica
Centrala proprie
Incalzire pardoseala
Calorifere
Aer conditionat
Izolatie Exterior
Ferestre PVC
Ferestre Termopan
Usa intrare Metal
Apometre
Contor gaz
Interfon
Lift
Localizare
Alexandru SANDU
Regional eXp Ambassador
Esti interesat de aceasta proprietate ?
Proprietati similare
De vanzare Imagine 17359
Mosilor Boutique II, apartament cu 2 camere, 2 bai. Discount special *
Bucuresti, Mosilor 170.000€ + TVA
2 camere 2 bai 54mp
De vanzare Imagine 17731
FINALIZAT | metrou | 3 cam, 2 terase, 98 mp, etaj 8/11, an 2025, loc parcare
Bucuresti, Theodor Pallady 172.000€
3 camere 2 bai 98mp
De vanzare Imagine 17981
Apartament 3 camere - Etaj 1 - str. Lupeni - mobilat si utilat
Sibiu, Lupeni 160.000€
3 camere 1 baie 88mp
De vanzare Imagine 18662
Apartament 3 camere + loc de parcare
Sanpetru, Central 179.900€
3 camere 1 baie 76mp
De vanzare Imagine 19036
Primo - 3 Camere Decomandat 73 mp ,Bloc 2014 , Parcare Inclusă , Curte Privată
Constanta, Primo 154.000€
3 camere 1 baie 73mp
De vanzare Imagine 20255
Apartament cu 2 camere, 75 mp, modern și complet mobilat - Isaran Residence
Brasov, Tractorul 169.900€
2 camere 1 baie 75mp