Imagine 34

VAND 4(5) CAMERE ZONA DECEBAL-CALARASI

ID: FX69993 Bucuresti, Calea Calarasilor 6
163.000€
Descriere
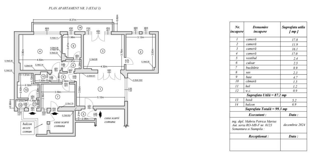
Descoperiți un colț de liniște și confort în inima Bucureștiului, cu acest apartament semidecomandat de 100 mp, situat în zona Călărașilor-Decebal.

La distanțe aproximativ egale față de Piața Alba Iulia și stația de metrou Piața Muncii, această proprietate din 1943 poate îmbina farmecul clasic cu facilitățile moderne, fiind ideală pentru familii sau tineri profesioniști care caută un cămin primitor și accesibil. Prețul de 163.000€ face din această ofertă o oportunitate unică pe piața imobiliară.

Apartamentul configurat ca „atunci”, dispune de două dormitoare spațioase, o baie mare cu cadă și o toaleta de serviciu, oferind confort și intimitate pentru întreaga familie.
Balcoanul de la strada este atat de mare încât îți poți face „norma de pași” la etaj.
Bucătăria spațioasă este locul ideal pentru a pregăti mese delicioase, iar spațiul de living promite momente plăcute alături de cei dragi.
Cu o suprafață totală de 100 mp, acest apartament vă oferă tot spațiul de care aveți nevoie pentru a vă simți acasă.

Nu lăsați această oportunitate să treacă!
Fie că sunteți în căutarea unui cămin confortabil sau a unei investiții inteligente, acest apartament din zona Călărașilor-Decebal vă așteaptă să-l transformați în propriul refugiu.

Contactați-ne astăzi pentru a programa o vizionare și descoperiți personal toate avantajele pe care această proprietate le oferă!
Caracteristici
  • ID:FX69993
  • Nr. camere:4
  • Nr. dormitoare:2
  • S. utila:100.00 mp
  • S. utila totala:100.00 mp
  • S. construita:125.00 mp
  • Comp.:Semidecomandat
  • Confort:Lux
  • Etaj:Etaj 1
  • Nr. bucatarii:1
  • Nr. bai:2
  • Nr. balcoane:2
  • An constructie:1943
  • Structura:Caramida
  • Tip imobil:Casa/Vila
  • Regim inaltime:P+2
  • Orientare:Sud-Est
Specificatii
Curent
Apa
Canalizare
Gaz
Centrala proprie
Calorifere
Vopsea lavabila
Faianta
Parchet
Gresie
Ferestre Lemn
Usa intrare Lemn
Usa interior Lemn
Wc serviciu
Contor gaz
Curte comuna
Localizare
Alexandru SANDU
Team Leader | REALTOR
Esti interesat de aceasta proprietate ?
Proprietati similare
De vanzare Imagine 15524
Apartament frumos amenajat de vânzare
Bucuresti, 13 Septembrie 175.000€
3 camere 2 bai 79mp
De vanzare Imagine 16299
Apartament 2 camere
Brasov, Noua 152.558€ + TVA
2 camere 1 baie 69.73mp
De vanzare Imagine 6860
Apartament 2 camere | Complet mobilat & utilat | Loc de parcare | 4 City North
Bucuresti, Pipera 175.000€
2 camere 1 baie 57.26mp
De vanzare Imagine 3513
Apartament 2 camere cu priveliște, mobilat, Lujerului - Virtuții, bloc 2012
Bucuresti, Lujerului 164.000€
2 camere 1 baie 57mp
De vanzare Imagine 16455
Apartament 3 camere
Brasov, Noua 159.042€ + TVA
3 camere 1 baie 76.86mp
De vanzare Imagine 4022
NOU! Apartament 3 camere complet mobilat, finisaje de calitate
Bucuresti, Bucurestii Noi 169.990€
3 camere 2 bai 70mp