Imagine 34

Calea Calarasilor, Hala Traian, Vanzare Birouri, et S+1+2+T, 353mp, teren 103,

ID: FX69407 Bucuresti, Calea Calarasilor 34
667.000€
Camere
7
Suprafata utila
353 mp
Etaj
Etaj 1
Bai
4
An constructie
2004
Descriere
Zona Calea Calarasilor, Hala Traian. Cladire numai pentru birouri.
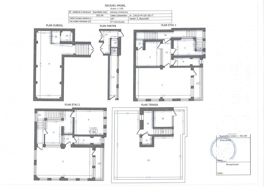
Spatiu birou, dispus pe demisol, et 1, etaj 2, terasa din D+P+1+2+T, format din 7 camere, din care, 2 camere open space, demisol 45mp, open space, 2 bucatarii, 4 bai, hol, 2 balcoane. An constructie 2004, suprafata utila totala 352.69mp. Teren 103.48 mp. Et. 1 - 3 camere, baie, bucatarie, balcon. Et 2 - 4 camere, baie bucatarie, balcon si iesire pe terasa care are 86mp plus un spatiu de depozitare. Demisol - open space, baie
Finisaje: gresie, faianta, termopan, parchet, mocheta, interfon, terasa circulabila refacuta 2025, garantie,.
Dotat cu aer conditionat, centrala termica proprie, pe fiecare etaj, contorizat separat pe fiecare etaj.
Spatiul se vinde nemobilat, bucataria este mobilata.
Este stradal, usor de gasit. Proprietar persoana fizica.
Colaboram cu agenti care au un cumparator pentru aceasta oferta.

Certificat energetic clasa A Consumul anual specific de energie (KWH/mp/an) - 127.64 Indicele de emisie echivalent CO2 (KgCO2/Mp/an) - 18.37 Consum anual specific de energie din surse regenrabile (KWH/mp/an) - 0.
Caracteristici
  • ID:FX69407
  • Nr. camere:7
  • S. utila:353.00 mp
  • S. terase:86.00 mp
  • S. construita:400.00 mp
  • Comp.:Decomandat
  • Confort:1
  • Etaj:Etaj 1
  • Nr. bucatarii:2
  • Nr. bai:4
  • Nr. balcoane:2
  • An constructie:2004
  • Structura:Caramida
  • Tip imobil:Casa/Vila
  • Regim inaltime:S+P+2
Specificatii
Curent
Apa
Canalizare
Gaz
Centrala proprie
Calorifere
Aer conditionat
Vopsea lavabila
Faianta
Parchet
Gresie
Mocheta
Ferestre Termopan
Usa intrare Metal
Usa interior Lemn
Terasa
Debara
Bucatarie Mobilata
Bucatarie Partial utilata
Apometre
Contor gaz
Nemobilat
Interfon
Localizare
Alexandru SANDU
Regional eXp Ambassador
Esti interesat de aceasta proprietate ?
Proprietati similare
De vanzare Imagine 20202
FORESTI SINAIA – Duplex Penthouse | Lux autentic la înălțimea muntelui
Sinaia, Furnica 633.000€ + TVA
4 camere 3 bai 112.54mp
De vanzare Imagine 7106
Apartament 5 camere Soseaua Nordului - Parc Herastrau
Bucuresti, Soseaua Nordului 749.000€
5 camere 4 bai 231.71mp
De vanzare Imagine 16590
Penthouse în Cartierul Noua
Brasov, Noua 620.000€
5 camere 3 bai 185mp
De vanzare Imagine 7564
Apartament 5 camere Soseaua Nordului - Parc Herastrau
Bucuresti, Herastrau 749.000€
5 camere 4 bai 231.71mp
De vanzare Imagine 7962
Vezi Parcul Kiseleff! Apartament spectaculos, 4 camere, 175mp
Bucuresti, Kiseleff 725.000€
4 camere 3 bai 175mp
De vanzare Imagine 14345
Titan Astorium 3 CAMERE predare 2025 Finisaje si Calitate Premium
Bucuresti, Titan 599.500RON + TVA
3 camere 2 bai 83.35mp