Imagine 34

Vila istorică consolidata Universitate - Gradina Icoanei - Sup. 1500 mp

ID: FX18774 Bucuresti, Universitate 19
3.000.000€ + TVA
Camere
26
Suprafata utila
1300 mp
An constructie
1939
Descriere
Pe una din străzile cu aer interbelic din centrul capitalei, in apropierea mai multor cladiri renumite si puncte de reper importante din oras, gasim o proprietate care, in urma unei ample renovări si consoldari poate sa devina oricand sediul unei firme de prestigiu. Asadar locația este una foarte accesibila, aceasta aflandu-se in apropierea statiei de metrou Piata Universității.
Construit in anul 1898 imobilul construit in stil neo-gotic impreuna cu cel modern formeaza un ansamblu arhitectural urbanistic ce poate deveni in curand un reper al zonei, ca urmare a unui amplu proces de restaurare si remodelare.
Elementele cele mai valoroase din punct de vedere stilistic ce scot in evidenta imobilul sunt: plastica arhitecturala a fatadelor si interioarelor, decoratiunile artistice, arcadele diverse, scara monumentala, luminatorul care acoperă holul principal de la etaj, tavanele ornamentale, boaseriile din lemn si de ce nu usa de la intrare.
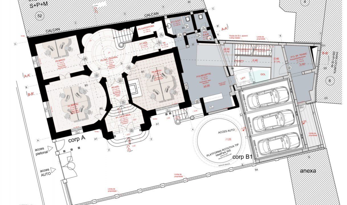
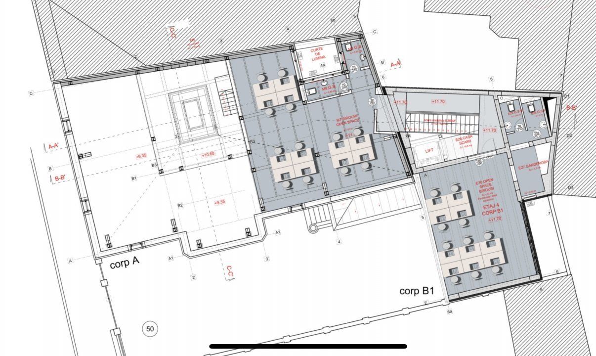
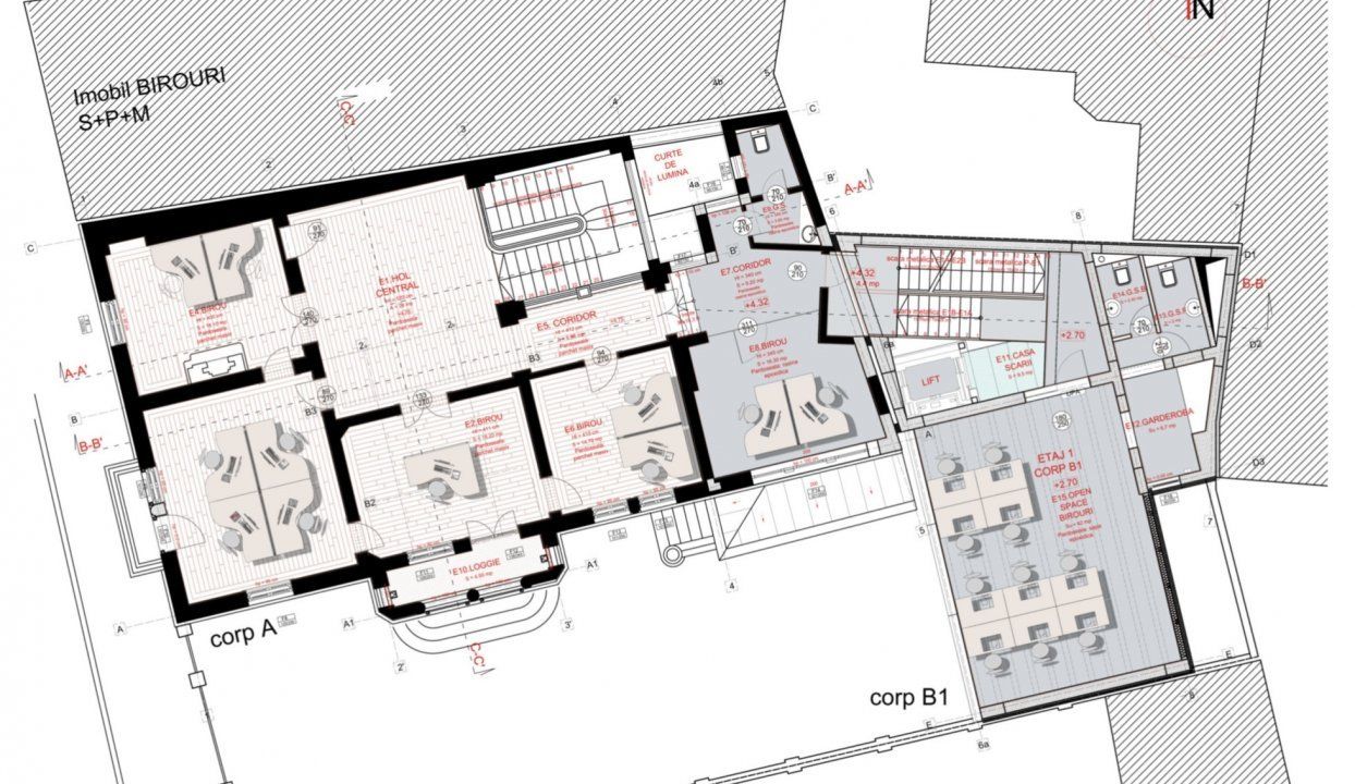
Constructia celor doua corpuri de cladire se desfasoara astfel:
Corpul A cladirea istorica este compusa din Subsol, Parter, 1 etaj și Mansarda
Corpul B cladirea moderna este compusa din Subsol, Parter si 4 etaje.
Cu o suprafata totala desfasurata de 1523 mp acest ansamblu arhitectural poate in curand sa mai adauge in patrimoniul capitalei o construcție care impreuna cu celelelate imobile renovate ale zonei sa recladeasca si sa redeseneze frumusetea clădirilor din centrul capitalei.
Caracteristici
  • ID:FX18774
  • Nr. camere:26
  • S. utila:1300.00 mp
  • S. construita:1523.00 mp
  • S. teren:471.00 mp
  • Nr. bucatarii:2
  • Nr. parcari:5
  • Nr. fronturi:1
  • An constructie:1939
  • An renovare:2020
  • Structura rezistenta:Caramida
  • Orientare:Sud-Vest
Specificatii
Curent
Apa
Canalizare
Gaz
Fibra optica
Centrala imobil
Localizare
Alexandru SANDU
Regional eXp Ambassador
Esti interesat de aceasta proprietate ?
Proprietati similare
De vanzare Imagine 11810
Vilă exclusivistă în Băneasa – teren 3.718 mp, suprafață desfăsurată 1.750 mp
Bucuresti, Baneasa 2.900.000€
14 camere 11 bai 1136mp