Imagine 34

Casă modernă, eficientă energetic în cartierul Bălcescu

ID: FX69573 Oradea, Vest 3
214.000€
Descriere
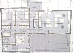
Vă prezentăm spre vânzare o casă frumoasă și modernă, tip Mexi, finalizată în 2020, amplasată într-o zonă liniștită din cartierul Bălcescu, pe un teren generos de 800 mp. Proprietatea este dispusă pe un singur nivel, având o suprafață construită de 175 mp, 118 mp utili și o terasă acoperită de 35 mp, perfectă pentru relaxare în aer liber.

Casa se remarcă printr-o compartimentare funcțională, cu delimitarea clară a zonelor de zi și de noapte:

- living spațios open-space cu bucătărie și acces pe terasa acoperită;
- cămară pentru alimente;
- dormitor matrimonial cu baie proprie;
- două dormitoare luminoase;
- baie principală;
- cameră tehnică și spălătorie.

Construcția, realizată din structură metalică, oferă durabilitate și eficiență energetică ridicată. Izolația este completă și atent executată: pereți cu Vidiwall, polistiren extrudat și spumă poliuretanică, izolație la pardoseală, iar sub acoperișul de tablă s-a aplicat celuloză cu guri de aerisire. Casa dispune și de recuperatoare de căldură, pentru un climat interior optim.

Încălzirea este realizată în pardoseală, cu centrală electrică, iar panourile fotovoltaice de 10 kW asigură eficiență energetică excelentă. Proprietatea are calitatea de prosumator, ceea ce garantează costuri reduse pe tot parcursul anului.

Dotări suplimentare:
- curent trifazic;
- apă din puț forat;
- fosa septică de mare capacitate;
- curte amenajată cu gazon, pomi și vie, oferind un cadru ideal pentru relaxare, atât pe terasa deschisă, cât și pe cea acoperită.

Casa se vinde complet mobilată și utilată, fiind gata de locuit — o alegere perfectă pentru cei care caută un cămin modern, eficient și confortabil.

Pentru mai multe detalii sau programarea unei vizionări, vă așteptăm cu drag!
Caracteristici
  • ID:FX69573
  • Nr. camere:4
  • Nr. dormitoare:3
  • S. utila:118.00 mp
  • S. terase:45.00 mp
  • S. utila totala:118.00 mp
  • S. construita:175.00 mp
  • S. teren:800.00 mp
  • Nr. bucatarii:1
  • Nr. bai:2
  • Nr. parcari:4
  • Front stradal:48.00 m
  • Nr. fronturi:2
  • An constructie:2020
  • Structura rezistenta:Metal
  • Orientare:Nord-Sud
Specificatii
Curent
Put
Fosa septica
Curent trifazic
CATV
Telefon
Fibra optica
Utilitati in zona
Centrala proprie
Izolatie Exterior
Izolatie Interior
Vopsea lavabila
Parchet
Gresie
Ferestre Termopan
Usa intrare Lemn
Usa interior PVC
Spatiu depozitare
Bucatarie Mobilata
Bucatarie Utilata
Complet mobilat
Curte
Localizare
Alexandru SANDU
Esti interesat de aceasta proprietate ?
Proprietati similare
TOP De vanzare Imagine 24132
Casă mobilată, cu garaj și foișor – Zonă liniștită în Nordul Piteștiului
Pitesti, Big-Bascov 199.500€
3 camere 2 bai 130mp
TOP De vanzare Imagine 366
Case moderne de vânzare – Trivale, Str. Câmpului, Pitești
Pitesti, Trivale 210.000€ + TVA
4 camere 3 bai 120mp
De vanzare Imagine 19003
Oportunitate: Teren cu Casă Demolabilă în Cluj | Dâmbul Rotund, Str. Spinoasă
Cluj-Napoca, Dambul-Rotund 185.000€
1 camera 1 baie 57mp
De vanzare Imagine 19158
Casa P+1 Individuala 147 MP | Moara Vlasiei | Teren 994 MP | Toate Utilitatile
Moara Vlasiei, Central 219.000€
4 camere 3 bai 114.57mp
De vanzare Imagine 19476
Casa 4 camere chiajna padure
Chiajna, Central 230.000€ + TVA
4 camere 3 bai 155mp
De vanzare Imagine 21811
Eleganță și confort premium: Descoperă casele tale de vis!
Tarlungeni 189.000€ + TVA
3 camere 2 bai 110mp