Imagine 34

VILA DUPLEX/COMPLEX INCHIS SECURIZAT/BANEASA RESIDENTIAL/IANCU NICOLAE/ GARAJ

ID: FX68581 Bucuresti, Iancu Nicolae 5
770.000€
Descriere
Prezentare Vilă Duplex – 5 camere, grădină 500 mp – Băneasa Rezidențial, Iancu Nicolae

Vă propunem spre vânzare o vilă duplex elegantă, situată într-un complex rezidențial securizat din zona exclusivistă Băneasa – Iancu Nicolae. Proprietatea oferă confort, siguranță și un stil de viață rafinat, potrivit familiilor care își doresc liniște, spațiu și acces rapid la facilitățile zonei de nord.

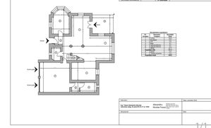
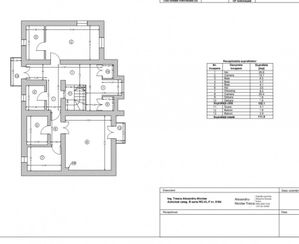
Vila este dispusă pe parter + etaj + mansardă open space, având o compartimentare funcțională și luminoasă:
- Living generos cu zonă de dining și acces direct către terasa acoperită;
- Bucătărie complet utilată;
- 2 dormitoare spațioase cel matrimonial avand si un dressing walk-in;
inca un living la etaj,- 3 băi amenajate elegant;
- Mansardă open space, ideală pentru birou, sală de fitness sau zonă de relaxare.

Exteriorul completează perfect confortul interior – vila beneficiază de o grădină matură de 500 mp, amenajată cu vegetație bogată, alei și zonă de relaxare.

Complexul rezidențial este securizat 24/7, cu acces controlat, spații verzi ample și locuri de joacă pentru copii, oferind un cadru liniștit și exclusivist.

Locație: Băneasa Rezidențial – Iancu Nicolae
Suprafață teren: 500 mp
Regim înălțime: P+1+M
Grădină matură, terasă acoperită, complex de lux

Caracteristici
  • ID:FX68581
  • Nr. camere:5
  • Nr. dormitoare:2
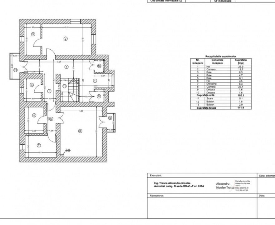
  • S. utila:233.00 mp
  • S. terase:15.00 mp
  • S. utila totala:160.00 mp
  • S. construita:275.00 mp
  • S. teren:607.00 mp
  • Nr. bucatarii:1
  • Nr. bai:4
  • Nr. balcoane:2
  • Nr. garaje:1
  • Front stradal:1.00 m
  • An constructie:2008
  • Structura rezistenta:Beton
  • Regim inaltime:P+1
  • Orientare:Sud-Est
Specificatii
Curent
Apa
Canalizare
Gaz
Fibra optica
Centrala proprie
Calorifere
Aer conditionat
Izolatie Exterior
Izolatie Interior
Bloc izolat termic
Vopsea lavabila
Faianta
Parchet
Gresie
Ferestre PVC
Usa intrare Metal
Usa intrare Lemn
Bucatarie Mobilata
Bucatarie Utilata
Contor gaz
Complet mobilat
Localizare
Alexandru SANDU
Team Leader | REALTOR
Esti interesat de aceasta proprietate ?
Proprietati similare
De vanzare Imagine 16294
Vila high tech, cu semineu, jacuzzi, terasa, 10 camere, Central, Brasov
Brasov, Central 780.000€
10 camere 7 bai 470mp
De vanzare Imagine 16620
Casa din Pin Nordic – Armonia dintre natură și perfecțiune.
Brasov, Exterior Nord 695.000€
5 camere 4 bai 263mp
De vanzare Imagine 5177
Vilă situata în 13 Septembrie - Izvor, lângă JW Marriott, Casa Poporului
Bucuresti, 13 Septembrie 795.000€
6 camere 4 bai 310.60mp
De vanzare Imagine 6178
Vila Art Deco cu poveste – intre istorie, functionalitate si rafinament
Bucuresti, Pache Protopopescu 695.000€
9 camere 7 bai 322.15mp
De vanzare Imagine 8035
VANZARE VILA POLONA – STR. JUSTINIAN
Bucuresti, Ultracentral 685.000€
5 camere 1 baie 198mp
De vanzare Imagine 6386
De Vănzare Vilă Individuală, Versatilă, chiar pe Bld Erou Iancu Nicolae
Bucuresti, Iancu Nicolae 735.000€
7 camere 6 bai 333mp