Imagine 34

Vila cu 5 camere si teren 500 in Cartier Rezidential Ovidiu Sud, Lacul Siutghiol

ID: FX70404 Ovidiu 5
550.000€
Descriere
Vila de vanzare cu 5 camere si garaj subteran in Cartierul Rezidential Ovidiu Sud, in proximitatea Castrului Roman

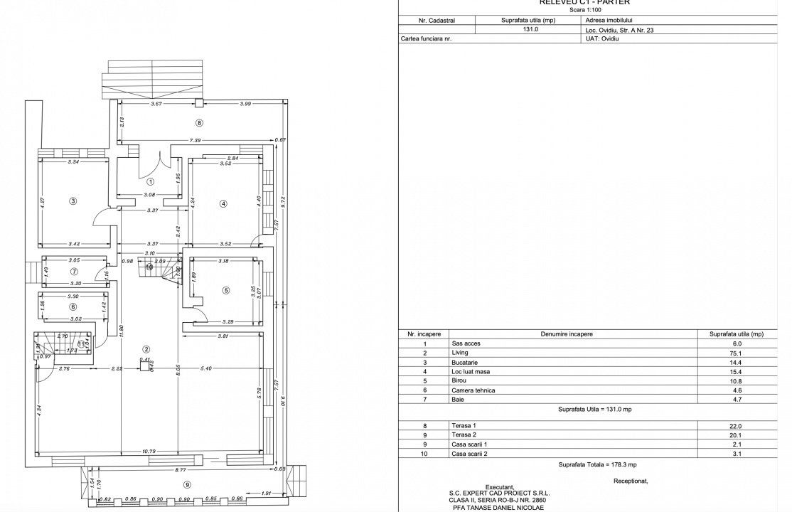
Suprafață utila totala: 318 mp
Suprafata teren: 500 mp
Amprenta la sol: 178,3 mp
Front stradal: 15 m lungime
Compartimentare: 4 dormitoare, birou, living generos, cameră de dining, bucătărie închisă, 3 băi + demisol.
Regim de inaltime: Demisol+Parter+1 Etaj
Incalzire: centrala proprie si calorifere

Vă prezentăm o vilă spațioasă de vanzare , ce se deosebeşte prin eleganța arhitecturala si suprafetele generoase. Proprietatea este amplasată într-o zonă sigura si linistita, fiind configurată pentru un stil de viață modern și funcțional. Proprietatea se afla la o distanta de 8 minute de intrarea in Orasul Constanta.

Cu 318 mp utili, vila oferă un living amplu, o bucătărie închisă, separeu de dining, birou, 4 dormitoare, 3 bai, o sauna privata și un garaj in demisol util pentru depozitare sau spații tehnice. Garajul beneficiaza de poarta electrica pe telecomanda.

Pe terenul de 500 mp este amplasat un foișor și o bucătărie de vară — locul perfect pentru relaxare și activități în aer liber.

O proprietate completă, smart compartimentată și potrivită unei familii care își dorește mai mult spațiu și o zonă liniștită.

Te bucuri de faleza lacului Siutghiol, de Castrul Roman si de Cherhanaua Ovidiu, la 5 minute de casa.
Caracteristici
  • ID:FX70404
  • Nr. camere:5
  • Nr. dormitoare:4
  • S. utila:318.70 mp
  • S. terase:77.90 mp
  • S. utila totala:410.10 mp
  • S. construita:365.00 mp
  • S. teren:500.00 mp
  • Nr. bucatarii:1
  • Nr. bai:3
  • Nr. parcari:2
  • Nr. garaje:1
  • Front stradal:15.00 m
  • Nr. fronturi:4
  • An constructie:2010
  • Structura rezistenta:Beton
  • Regim inaltime:D+P+1
Specificatii
Curent
Apa
Canalizare
Gaz
CATV
Acces internet
Centrala proprie
Calorifere
Aer conditionat
Ventiloconvectoare
Izolatie Exterior
Vopsea lavabila
Var
Faianta
Tapet
Parchet
Gresie
Mocheta
Ferestre Termopan
Usa intrare Metal
Usa interior Lemn
Spatiu depozitare
Dressing
Anexe
Bucatarie Mobilata
Bucatarie Utilata
Apometre
Contor gaz
Complet mobilat
Sauna
Gradina
Localizare
Alexandru SANDU
Esti interesat de aceasta proprietate ?
Proprietati similare
TOP De vanzare Imagine 312
Confort și Intimitate la Superlativ – Bloc Boutique cu 3 Apartamente
Pitesti, Gavana 495.000€
9 camere 6 bai 296mp
TOP De vanzare Imagine 1075
Vile PREMIUM cu 5/6 camere Trivale | 295 mp Utili | str. Campului
Pitesti, Trivale 475.000€
6 camere 4 bai 295.88mp
De vanzare Imagine 18535
ELEGANȚĂ ȘI CONFORT | DESIGN AMERICAN | BRAYTIM
Timisoara, Braytim 535.000€
6 camere 4 bai 355mp
De vanzare Imagine 18890
Vila + Afacere 15.000mp Clinceni
Clinceni 550.000€
5 camere 3 bai 225mp
De vanzare Imagine 19088
Vila 6 Camere 241 MP | Baneasa - Sisesti | Teren 482 MP | Centrala proprie
Bucuresti, Sisesti 540.000€
6 camere 4 bai 241mp
De vanzare Imagine 19257
Vilă deosebită de vânzare în Otopeni langa ''Ana Aslan'' - arhitectura germana
Otopeni 550.000€
4 camere 3 bai 313.20mp