




















de vanzare
Vila individuala | curte proprie | Andronache
Bucuresti, Andronache
590.000€
Camere
7
Suprafata utila
330 mp
Suprafata construita
387 mp
Bai
4
An constructie
2007
- ID:FX57737
- Nr. camere:7
- Nr. dormitoare:4
- S. utila:330.00 mp
- S. construita:387.00 mp
- S. teren:485.00 mp
- Nr. bucatarii:2
- Nr. bai:4
- Nr. balcoane:1
- Nr. parcari:2
- Nr. garaje:1
- Front stradal:9.90 m
- An constructie:2007
- Structura rezistenta:Caramida
- Regim inaltime:P+1+M
Descriere
Va propunem o vila cu 7 camere in zona Andronache.
Construita in 2007, casa se desfasoara pe P+1+M si are o suprafata de 330mp si o curte libera de 230mp.
La parter casa este impartita in doua apartamente avand doua intrari separate si regasim 2 camere, o bucatarie, doua bai si un living de paroximativ.
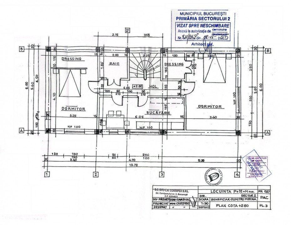
La etajul 1 avem doua dormitoare, o baie, o bucatarie si un balcon.
In mansarda regasim o baie,un spatiu de depozitare, o zona de relaxare si o alta camera ce poate amenajata in birou sau dormitor.
Imobilul este amplasat pe un teren de 485mp si detine un garaj pentru doua masini.
Citeste mai mult
Construita in 2007, casa se desfasoara pe P+1+M si are o suprafata de 330mp si o curte libera de 230mp.
La parter casa este impartita in doua apartamente avand doua intrari separate si regasim 2 camere, o bucatarie, doua bai si un living de paroximativ.
La etajul 1 avem doua dormitoare, o baie, o bucatarie si un balcon.
In mansarda regasim o baie,un spatiu de depozitare, o zona de relaxare si o alta camera ce poate amenajata in birou sau dormitor.
Imobilul este amplasat pe un teren de 485mp si detine un garaj pentru doua masini.
Specificatii
Curent
Apa
Canalizare
Gaz
CATV
Centrala proprie
Calorifere
Aer conditionat
Izolatie Exterior
Vopsea lavabila
Parchet
Gresie
Ferestre PVC
Ferestre Termopan
Usa intrare Metal
Usa interior Lemn
Dressing
WC Serviciu
Bucatarie Mobilata
Bucatarie Utilata
Apometre
Contor gaz
Partial mobilat
Echipa iNEX
0376 509 509
Esti interesat de aceasta proprietate ?