Imagine 34

Spatii comerciale | 182-463 mp | Subsol | Barrio Residence Unirii

ID: FX68473 Bucuresti, Unirii 33
4.000€ + TVA
Camere
1
Suprafata utila
182 mp
Front stradal
0 m
Parcari
3
An constructie
2026
Descriere
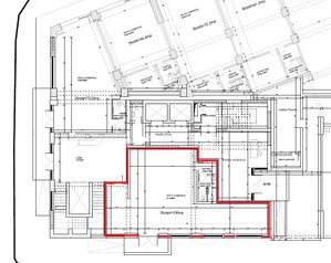
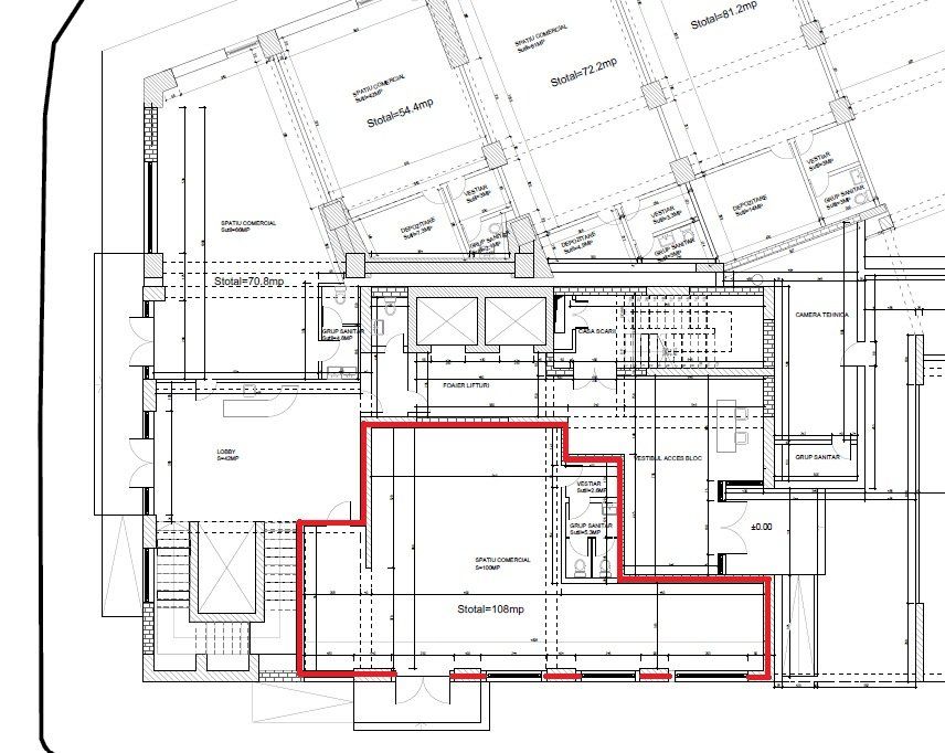
Spatiile comerciale se afla in proiectul premium Barrio Residence Unirii din strada Voinicului, nr. 1-11, la doar 150 m de Bd. Unirii.

Dispun de spatii vitrate mari (parter si mezanin), finisaje premium si un vad comercial si pietonal bun. 

Disponibilitati:

Parter: intre 72 mp si 312 mp (dispun de terasa proprie), preturi intre 35-40 euro/mp + TVA in functie de pozitie.
Mezanin: open space de 887 mp  cu posibilitate de compartimentare, pret: 25 euro/mp + TVA.
Subsol: intre 182 mp si 463 mp. (dispun de putere mare, pretabile si pentru RMN), pret: 22 euro/mp + TVA.

Posibilitate de montare hota. Parcarile sunt disponibile separat la un cost de 100 euro + TVA.

Imobilul are termen de finalizare in aprilie 2026.

Pentru orice detalii ma puteti contacta!
Caracteristici
  • ID:FX68473
  • Nr. camere:1
  • S. utila:182.00 mp
  • S. vitrina:0.00 m
  • Front stradal:0.00 m
  • Comp.:Open space
  • Nr. bai:1
  • Nr. parcari:3
  • An constructie:2026
  • Regim inaltime:P+11
Specificatii
Curent
Apa
Canalizare
Curent trifazic
CATV
Acces internet
Fibra optica
Ventiloconvectoare
Vopsea lavabila
Gresie
Ferestre Aluminiu
Lift
Spatii agrement
Localizare
Alexandru Sandu
Regional eXp Ambassador
Esti interesat de aceasta proprietate ?
Proprietati similare
De inchiriat Imagine 20125
Cladire de birouri cu parcare privata 266 mp utili
Giurgiu 13€/mp
9 camere 2 bai 266mp
De inchiriat Imagine 7021
Obor - Avrig Park | Spațiu Comercial 120 mp | Vitrină 6 ml - Terasa Proprie
Bucuresti, Obor 4.000€
2 camere 2 bai 120mp
De inchiriat Imagine 5497
Spatii comerciale | 72-312 mp | Barrio Residence Unirii
Bucuresti, Unirii 3.780€ + TVA
1 camera 1 baie 108mp
De inchiriat Imagine 6814
Spatiu comercial | Unirii | Tineretului | Metrou 7'
Bucuresti, Unirii 4.500€ + TVA
5 camere 2 bai 372mp