Imagine 34

SPATIU COMERCIAL PE SPLAIUL UNIRII, ASMITA GARDENS!

ID: FX50573 Bucuresti, Mihai Bravu 25
Pret la cerere
Camere
2
Suprafata utila
66.49 mp
Front stradal
6.56 m
An constructie
2009
Descriere
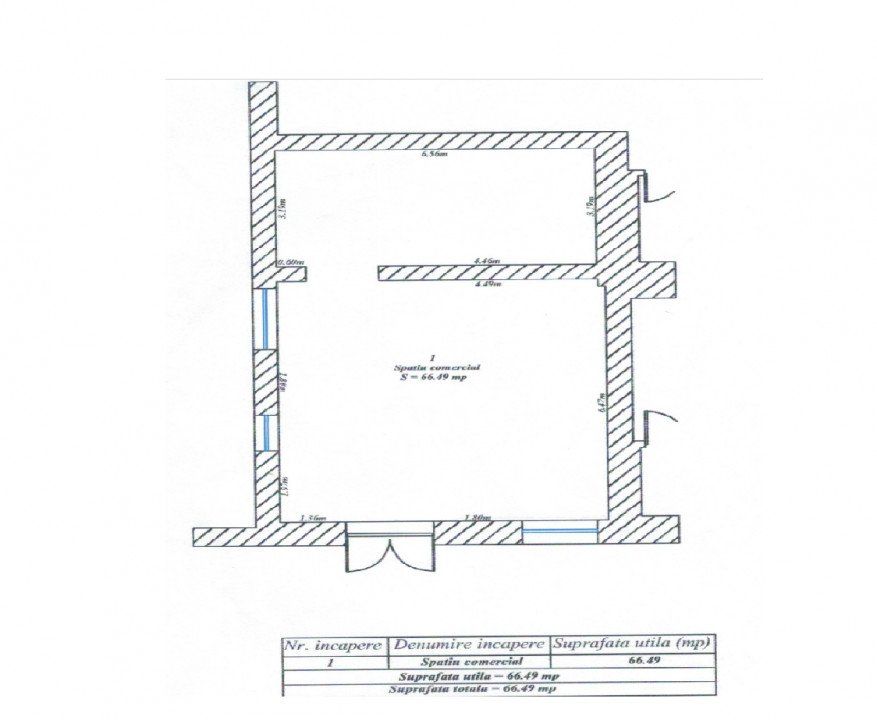
Tip tranzactie: Vanzare, Tip proprietate: Spatiu Comercial, Zona: Splaiul Unirii Nr. 168, Bloc T1 Asmita Gardens, Pret vanzare: 249.000,-EUR, Pozitionare: parter, Suprafata utila: 66,49 mp, Inaltime: 4m, Numar grupuri sanitare: 2, Acces stradal, Boxa pentru depozitare: 13,74mp(se vinde separat cu 15.000,-eur, nu este inclusa in acest pret), Anul constructiei: 2009

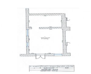
Spatiu comercial stradal situat la parterul complexului de blocuri Asmita Gardens, in suprafata de 66,49 mp. Este un spatiu luminos, impartit in doua incaperi, partea din fata are o suprafata patrata de 46 mp, iar partea din spate are o suprafata dreptunghiulara de 20,50 mp. Inaltimea intregului spatiu este de 4 m, iar accesul in spatiu se face exclusiv prin usa de acces din Splaiul Unirii.
In partea din spate unde se afla si cele doua grupuri sanitare, datorita inaltimii de 4 m pe care o are spatiului, se pot organiza spatii de depozitare deasupra structurii celor doua grupuri sanitare. Utilitatile spatiului sunt independente, exista contorizare separata la electricitatea de 220v, la fel si pentru contorizarea separata a consumului incalzirii spatiului, ce se face prin sistemul de incalzire centralizata a complexului Asmita Gardens. Pentru o putere mai mare de electricitate de 380v, exista optiunea ca spatiul sa fie conectat si la o tensiune mai mare de 220v.
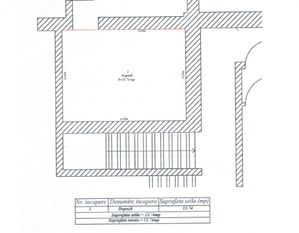
Separat de acest spatiu comercial exista si o boxa pentru depozitare in suprafata de 13,74 mp ce se vinde cu pretul de 15.000,-eur, care nu este inclusa in pretul de vanzare de 249.000,-eur al spatiului. Boxa se afla in interiorul blocului, la mica distanta de spatiu, in zona destinata boxelor pentru intreg bocul T1.
Va asteptam la vizionare!
Caracteristici
  • ID:FX50573
  • Nr. camere:2
  • S. utila:66.49 mp
  • S. construita:66.49 mp
  • Front stradal:6.56 m
  • Comp.:Compartimentat
  • Nr. bai:2
  • An constructie:2009
  • Structura rezistenta:Beton
  • Regim inaltime:S+P+17
Specificatii
Curent
Apa
Canalizare
Acces internet
Centrala imobil
Calorifere
Aer conditionat
Izolatie Exterior
Vopsea lavabila
Faianta
Gresie
Ferestre Termopan
Aplice
Lumina naturala
Apometre
Contor caldura
Nemobilat
Control electric individual
Administrare
Curatenie
Paza
Supraveghere video
Ingrijire spatii verzi
Curatenie parcare
Localizare
Alexandru SANDU
Regional eXp Ambassador
Esti interesat de aceasta proprietate ?
Proprietati similare
De vanzare Imagine 6992
Spatiu Comercial cu Vad - Mega Mall - Sos Pantelimon
Bucuresti, Pantelimon 215.000€
2 camere 1 baie 37mp
De vanzare Imagine 7001
Spatiu comercial - Metrou Constantin Brancusi - Valea Argesului Stradal
Bucuresti, Drumul Taberei 215.000€
2 camere 1 baie 42mp
De vanzare Imagine 23767
Spatiu evenimente langa Bucuresti, spatiu inchiriat cu 1500 €/luna
Lunguletu, Central 265.000€
7 camere 4 bai 480mp
De vanzare Imagine 6560
Casa cu curte | Cladire pentru activitati comerciale si servicii
Bucuresti, Aparatorii Patriei 260.000€
4 camere 2 bai 164mp
De vanzare Imagine 14034
MEGA OCAZIE – CLADIRE DE 1000MP CU MULTIPLE POSIBILITATI DE UTILIZARE!
Bucuresti, Colentina 256.000€
1000mp
De vanzare Imagine 14630
Spatiu comercial 134 mp_Bd.Metalurgiei
Bucuresti, Metalurgiei 220.000€
3 camere 2 bai 134mp