
























0% comision
de vanzare
Spațiu comercial cu grădină exclusivă de473mp la bulevardul Cantemir
Bucuresti, Unirii
640.000€
Camere
7
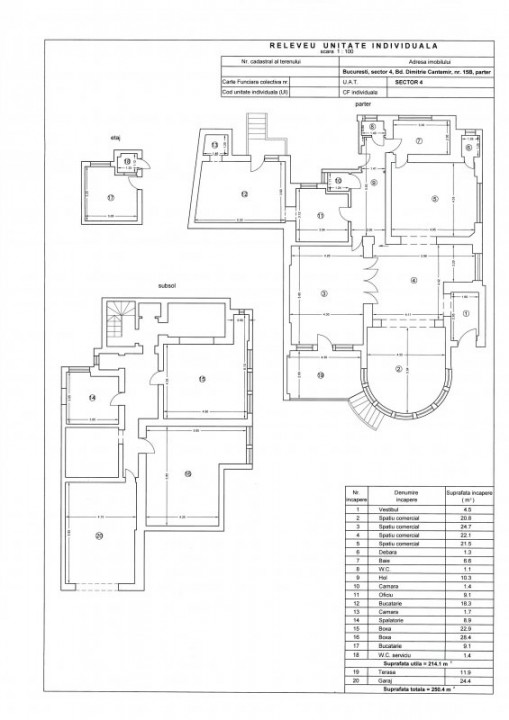
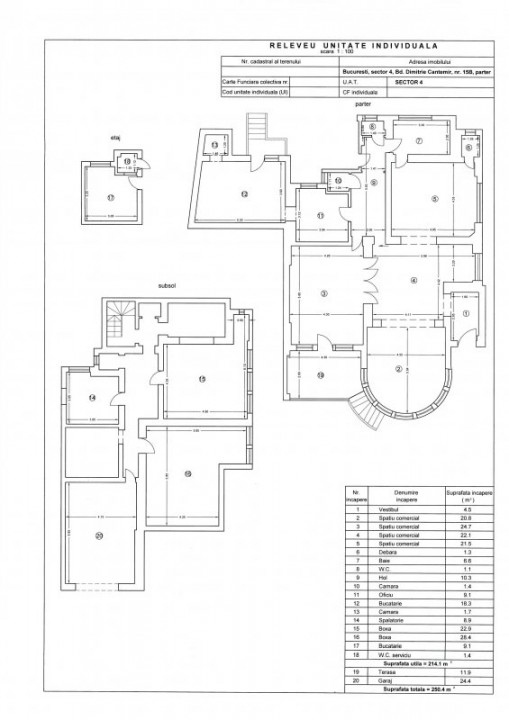
Suprafata utila
214 mp
Suprafata construita
300 mp
Parcari
4
An constructie
1929
- ID:FX51342
- Nr. camere:7
- S. utila:214.00 mp
- S. construita:300.00 mp
- S. curte:604.00 mp
- Front stradal:20.00 m
- Comp.:Compartimentat
- Nr. bai:3
- Terase:2
- Nr. parcari:4
- Nr. garaje:1
- An constructie:1929
- An renovare:2022
- Structura rezistenta:Beton
- Tip imobil:Casa/Vila
- Regim inaltime:D+P+1
Descriere
Suntem bucuroși să vă prezentăm o proprietate cu adevărat specială, remarcabilă atât prin poziționare, deschiderea generoasă la stradă și accesibilitate, cât și prin terenul exclusiv aflat în proprietate. Un spațiu comercial aflat la parterul și demisolul unei vile ce beneficiază de dublă deschidere – către Bulevardul Dimitrie Cantemir și către strada din spatele vilei, oferind astfel nu doar vizibilitate ci și acces facil pentru aprovizionare și posibilitatea de a parca mai multe mașini.
Imobilul, proiectat în stilul modernist al anilor '20 de către arhitectul R. Glasberg, impresionează prin liniile simple, formele geometrice clare și o utilizare eficientă a spațiului. Ferestrele panoramice și deschiderile largi, alături de ușile glisante, permit luminii naturale să inunde spațiul pe tot parcursul zilei, creând o conexiune armonioasă între interior și exterior. Paleta cromatică, bazată pe tonuri neutre și calde, subliniază eleganța și simplitatea designului, evidențiind farmecul arhitecturii geometrice, fără ornamentații excesive.
În 2023, spațiul a fost renovat integral, proces care a inclus modernizarea spațiului interior și exterior, instalarea unei centrale proprii cu boiler, schimbarea ferestrelor, recondiționarea acoperișului, renovarea băilor, precum și înlocuirea instalațiilor sanitare și electrice. Întregul proces de renovare s-a desfășurat cu grijă pentru păstrarea compartimentării și detaliilor originale, oferind în același timp confort modern.
Cu o suprafață totală de 250 mp, spațiul ocupă integral parterul, parțial zona de demisol și etaj, reprezentând astfel 80% din suprafața întregului imobil. Terenul aferent, de 604,26 mp, se află în proprietate exclusivă și constituie 90% din suprafața totală a proprietății. Din aceștia 473mp sunt curte liberă aflată în proprietate exclusivă.
De asemenea, proprietatea include un garaj situat la demisol, cu acces direct din bulevard, care oferă un loc de parcare. Alte trei locuri pot fi amenajate în curtea din spate. În plus, spațiul dispune de curent de înaltă tensiune (380V), oferind multiple posibilități de utilizare.
În prezent, proprietatea este închiriată unei gelaterii elegante, care își dorește să își continue activitatea în acest spațiu pe termen cât mai lung.
Citeste mai mult
Imobilul, proiectat în stilul modernist al anilor '20 de către arhitectul R. Glasberg, impresionează prin liniile simple, formele geometrice clare și o utilizare eficientă a spațiului. Ferestrele panoramice și deschiderile largi, alături de ușile glisante, permit luminii naturale să inunde spațiul pe tot parcursul zilei, creând o conexiune armonioasă între interior și exterior. Paleta cromatică, bazată pe tonuri neutre și calde, subliniază eleganța și simplitatea designului, evidențiind farmecul arhitecturii geometrice, fără ornamentații excesive.
În 2023, spațiul a fost renovat integral, proces care a inclus modernizarea spațiului interior și exterior, instalarea unei centrale proprii cu boiler, schimbarea ferestrelor, recondiționarea acoperișului, renovarea băilor, precum și înlocuirea instalațiilor sanitare și electrice. Întregul proces de renovare s-a desfășurat cu grijă pentru păstrarea compartimentării și detaliilor originale, oferind în același timp confort modern.
Cu o suprafață totală de 250 mp, spațiul ocupă integral parterul, parțial zona de demisol și etaj, reprezentând astfel 80% din suprafața întregului imobil. Terenul aferent, de 604,26 mp, se află în proprietate exclusivă și constituie 90% din suprafața totală a proprietății. Din aceștia 473mp sunt curte liberă aflată în proprietate exclusivă.
De asemenea, proprietatea include un garaj situat la demisol, cu acces direct din bulevard, care oferă un loc de parcare. Alte trei locuri pot fi amenajate în curtea din spate. În plus, spațiul dispune de curent de înaltă tensiune (380V), oferind multiple posibilități de utilizare.
În prezent, proprietatea este închiriată unei gelaterii elegante, care își dorește să își continue activitatea în acest spațiu pe termen cât mai lung.
Specificatii
Curent
Apa
Canalizare
Gaz
Curent trifazic
Acces internet
Fibra optica
Centrala proprie
Calorifere
Aer conditionat
Vopsea lavabila
Faianta
Huma
Parchet
Gresie
Ferestre PVC
Ferestre Termopan
Lampi
Spoturi
Aplice
Exterior cladire
Lumina naturala
Apometre
Contor gaz
Acoperis
Curte
Gradina
Control electric individual
Echipa iNEX
0376 509 509
Esti interesat de aceasta proprietate ?