Imagine 34

Spatiu Comercial 202MP - Vitrina 15ML | Blevedere Gallery - Fabrica De Glucoza

ID: FX60192 Bucuresti, Aviatiei 38
5.454€ + TVA
Suprafata utila
202 mp
Front stradal
15 m
An constructie
2024
Descriere
Spațiu comercial de excepție, parte din Galeriile Belvedere, situat pe Șos. Fabrica de Glucoză, într-o zonă cu trafic intens și vizibilitate maximă, într-un pol comercial în continuă dezvoltare.

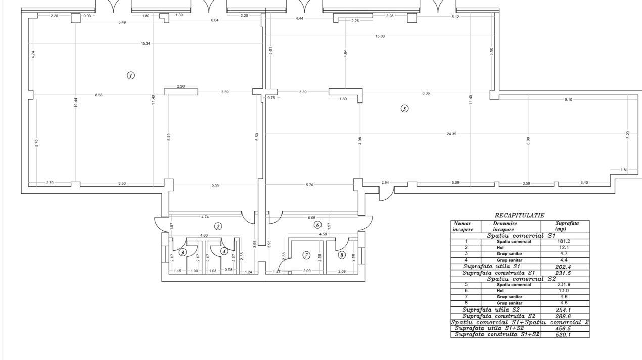
📏 Suprafață utilă: 202 mp (zonă desfacere/comercială 181 mp + 2 băi de 4,5 mp fiecare și hol de 12 mp)
📏 Suprafață construită: 231 mp
📐 Vitrina: 15 ML
🏗 Clădire nouă, finalizată în 2024, cu fațadă modernă din sticlă și înălțime generoasă sub grindă de 5,5 m

Acces aprovizionare prin spate pentru eficiență logistică
Dotări și facilități:
Instalații electrice și sanitare complete
Contor individual
Autorizație ISU
Iluminat natural generos datorită fațadei vitrate
250 locuri de parcare disponibile pe breteaua auto paralelă, aflate în proprietate

📍 Poziționare strategică – spațiul face parte din ansamblul Galeriile Belvedere, format din 25 de spații comerciale la parterul celor 13 blocuri, ocupate deja de branduri de renume:
Kaufland, Mobexpert, Casa Magică, Natuzzi, Sophia, Art Granit, Arthitek, Libra Bank, Mega Image, Bang & Olufsen, Husqvarna, Sweat Fitness, ABC Car showroom auto etc.

✅ Avantaje majore:
Vizibilitate maximă la bulevard, cu deschidere de 15 m
Vecinătatea unor branduri consacrate
Trafic pietonal și auto ridicat
Potrivit pentru showroom, retail, servicii bancare, clinici medicale, fitness sau gastronomie
Caracteristici
  • ID:FX60192
  • S. utila:202.00 mp
  • S. construita:231.00 mp
  • Front stradal:15.00 m
  • Nr. bai:2
  • An constructie:2024
  • Structura rezistenta:Beton
  • Tip imobil:Bloc
  • Regim inaltime:P+10
Specificatii
Curent
Apa
Canalizare
Localizare
Alexandru Sandu
Regional eXp Ambassador
Esti interesat de aceasta proprietate ?
Proprietati similare
De inchiriat Imagine 20427
Spatiu comercial Marasti, 204 m2, sensul giratoriu OMV, trafic excelent
Cluj-Napoca, Marasti 5.500€ + TVA
1 baie 204mp
De inchiriat Imagine 13303
Obor • Avrig Park • Spațiu Comercial • 187 mp • Vitrină 9,6 m • Terasa
Bucuresti, Obor 5.000€
2 camere 2 bai 187mp
De inchiriat Imagine 25624
Slatina central, inchiriere imobil pt clinica, birou, banca, show room, fitness
Slatina, Crisan 5.000€ + TVA
3 camere 1 baie 446mp
De inchiriat Imagine 27515
Spatiu comercial Ultracentral 494mp, curte 267mp!
Craiova, Utracentral 5.900€
10 camere 2 bai 380.42mp
De inchiriat Imagine 11390
SPATIU COMERCIAL PREMIUM in EMINESCU - DACIA CUSTOM MADE*
Bucuresti, Eminescu 5.500€
2 camere 2 bai 244mp