












0% comision
de vanzare
Teren cu Aut. Constr. 2025, zona Ion Mihalache - Intrarea Alpinistilor, nr 6-8, ideal constructie casa
Bucuresti, 1 Mai
369.000€
- ID:FX55423
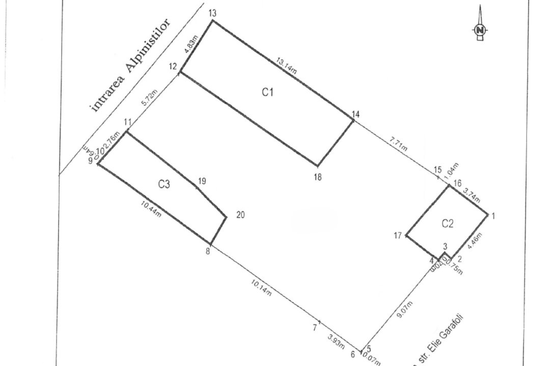
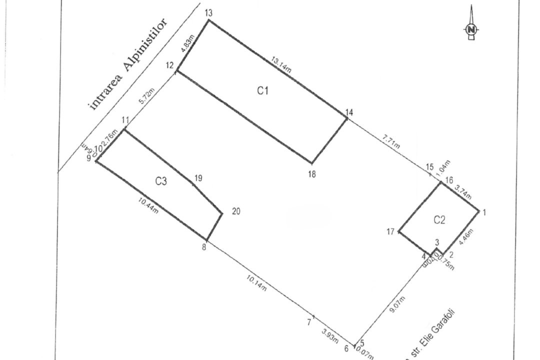
- S. teren:348.00 mp
- Front stradal:14.80 m
- Nr. fronturi:1
- Clasificare teren:Intravilan
- Regim inaltime:S+P+2+M
Descriere
Teren cu autorizatie de construire emisa in 2025 pentru casa Parter!
Teren perfect pentru casa familiei tale, aflat pe o strada linistita (Intrarea Alpinistilor), zona 1 Mai, foarte aproape de cartierul Domenii si Bulevardul Expozitiei, statia de Metrou 1 Mai, straduta cu acces din Ion Mihalache in spatele blocurilor de la bulevard.
Zona este una rezidentiala, linistita, aproape de scoli, gradinite, transport public si alte facilitati necesare unei vieti confortabile.
Terenul are suprafata din masuratori 348mp si constructii demolabile 100mp, forma dreptungiulara, topografie plana, ideal pentru constructia unei case moderne. Exista autorizatie de construire emisa in 2025 pentru o casa cu regim de inaltime Parter si terase, POTpropus = 37% si CUTpropus = 0.37, suprafata construita/desfasurata 128mp (155mp cu terase).
Amplasament deosebit datorita vecinatatilor si accesului rapid catre nordul si vestul Bucurestiului, apropierii de Bulevardului Expozitiei, statiei de metrou 1 Mai si viitoarea linie de metrou M6 spre Aeroportul Otopeni, zona Domenii, etc.
Terenul beneficiaza de toate utilitatile: apa, canalizare, gaze, energie electrica.
Indicatori urbanistici zona:
- Subzona L1a (locuinte individuale si colective de mici dimensiuni cu maxim P+2 niveluri, situate in afara perimetrelor de protectie);
- Suprafata din masuratori 348mp, suprafata din acte 338mp;
- Front stradal: 14,8 m;
- Regim inaltime: P+2; posibilitate mansardare 60% din aria unui nivel curent;
- POTmax = 45%;
- CUTmax = 0,9 (P+1) si 1,3 (P+2);
- Raportul laturilor: 0,6
- Latime drum = 9,5m
- Latime cale circulatie auto = 6,5.
VECINATATI: Bulevardul Ion Mihalache, Bulevardul Expozitiei, Cartierul Domenii, Piata Domenii, Piata Chibrit, Facultatea de Agronomie, scoli, gradinite, Metrou 1 Mai.
Citeste mai mult
Teren perfect pentru casa familiei tale, aflat pe o strada linistita (Intrarea Alpinistilor), zona 1 Mai, foarte aproape de cartierul Domenii si Bulevardul Expozitiei, statia de Metrou 1 Mai, straduta cu acces din Ion Mihalache in spatele blocurilor de la bulevard.
Zona este una rezidentiala, linistita, aproape de scoli, gradinite, transport public si alte facilitati necesare unei vieti confortabile.
Terenul are suprafata din masuratori 348mp si constructii demolabile 100mp, forma dreptungiulara, topografie plana, ideal pentru constructia unei case moderne. Exista autorizatie de construire emisa in 2025 pentru o casa cu regim de inaltime Parter si terase, POTpropus = 37% si CUTpropus = 0.37, suprafata construita/desfasurata 128mp (155mp cu terase).
Amplasament deosebit datorita vecinatatilor si accesului rapid catre nordul si vestul Bucurestiului, apropierii de Bulevardului Expozitiei, statiei de metrou 1 Mai si viitoarea linie de metrou M6 spre Aeroportul Otopeni, zona Domenii, etc.
Terenul beneficiaza de toate utilitatile: apa, canalizare, gaze, energie electrica.
Indicatori urbanistici zona:
- Subzona L1a (locuinte individuale si colective de mici dimensiuni cu maxim P+2 niveluri, situate in afara perimetrelor de protectie);
- Suprafata din masuratori 348mp, suprafata din acte 338mp;
- Front stradal: 14,8 m;
- Regim inaltime: P+2; posibilitate mansardare 60% din aria unui nivel curent;
- POTmax = 45%;
- CUTmax = 0,9 (P+1) si 1,3 (P+2);
- Raportul laturilor: 0,6
- Latime drum = 9,5m
- Latime cale circulatie auto = 6,5.
VECINATATI: Bulevardul Ion Mihalache, Bulevardul Expozitiei, Cartierul Domenii, Piata Domenii, Piata Chibrit, Facultatea de Agronomie, scoli, gradinite, Metrou 1 Mai.
Specificatii
Curent
Apa
Canalizare
Gaz
Echipa iNEX
0376 509 509
Esti interesat de aceasta proprietate ?